Главная ул. Королева Елизавета, Дурлешть
ул. Королева Елизавета, Дурлешть
ПродажаПРЕИМУЩЕСТВА
Описание
Продаётся 3-комнатная квартира, расположенная в секторе Дурлешть, на улице Регина Елизабета.
Жилой комплекс: Colina Verde Residence
Строительная компания: BasInvest
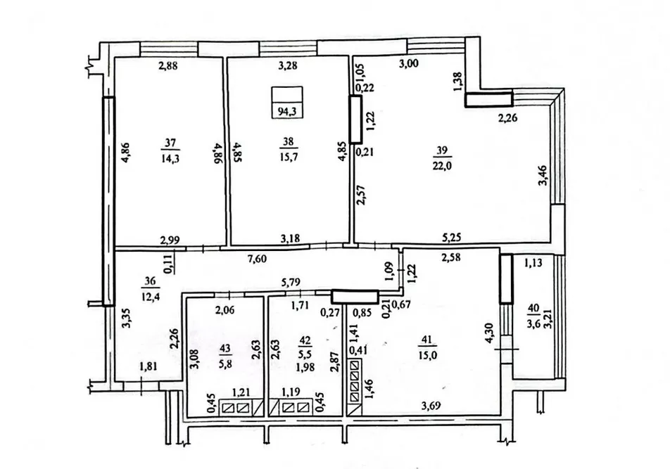
Общая площадь: 94,3 м²
Планировка: прихожая, кухня с гостиной, 3 спальни, балкон, 2 санузла
Характеристики:
-
Сдано в эксплуатацию
-
«Белая» отделка
-
Автономное отопление
-
Подземная парковка
-
Видеонаблюдение
-
Ограждённый двор
-
Детская площадка
Двор комплекса оборудован детской площадкой, охраной и видеонаблюдением 24/7, а также подземной парковкой.
В непосредственной близости: банки, салоны красоты, супермаркеты, детские сады, школы и лицеи.
Удобный доступ к общественному транспорту в любую часть города.
РАСПОЛОЖЕНИЕ НА КАРТЕ











