Главная ул. Тудор Владимиреску, Рышкановка
ул. Тудор Владимиреску, Рышкановка
ПродажаПРЕИМУЩЕСТВА
Описание
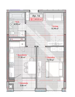
Продается квартира с 1 спальней и гостиной в комплексе Smart Home, ул. Тудор Владимиреску.
Площадь: 49.05 кв.м
Планировка: прихожая-гостиная, санузел, спальня, кухня с балконом.
Характеристики:
-
белый вариант;
-
панорамные окна;
-
автономное отопление;
-
шумо- и теплоизоляция;
-
расположение в центре столицы;
-
квартира средняя;
-
очень удачная планировка.
Сдача в эксплуатацию: декабрь 2026.
В непосредственной близости: маркет, школа, детский сад, торговые центры и др.
Удобный доступ к общественному транспорту.
РАСПОЛОЖЕНИЕ НА КАРТЕ











