Главная бул. Дачиа, Ботаника, Кишинев
бул. Дачиа, Ботаника, Кишинев
Продажа
                    ID: 17184
                
            ПРЕИМУЩЕСТВА
Описание
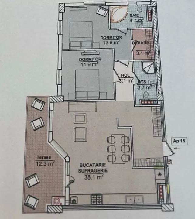
Продаётся квартира в Сатул Герман, Ботаника, Кишинёв.
Площадь квартиры: 81,9 м²
Планировка: прихожая, кухня объединённая с гостиной, 2 спальни, 2 санузла, гардероб, терраса.
Характеристики:
- 
	Подземная парковка; 
- 
	Асфальтированная дорога; 
- 
	Тёплый пол; 
- 
	2 балкона; 
- 
	Гардероб; 
- 
	Панорамные окна Rehau; 
- 
	Потолки высотой 3 м; 
- 
	Вся необходимая инфраструктура на территории комплекса; 
- 
	Очень тихий район. 
РАСПОЛОЖЕНИЕ НА КАРТЕ

 
                                             
                                             
                                             
                                             
                                             
                                             
                                             
                                             
                                             
                                             
                                             
                                             
                                             
                                            









