Главная ул. Диминеций, Ботаника
ул. Диминеций, Ботаника
Продажа
ID: 17774
ПРЕИМУЩЕСТВА
Описание
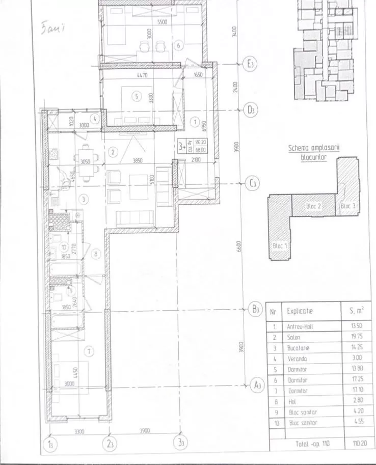
Продается 3-комнатная квартира с гостиной, сектор Ботаника, ул. Диминеций
Застройщик: „Sky House”
Блок: 3
Общая площадь: 110 м²
Планировка: прихожая, 3 спальни, гостиная, кухня, 2 санузла, балкон
Характеристики:
- Сдача в эксплуатацию: 2026
- Белый вариант отделки
- Автономное отопление
- Фасад высокого качества
- Стены из красного кирпича
- Стеклопакеты
- Панорамные окна
- Подземная парковка
- Современный лифт
- Детская площадка
Условия оплаты в рассрочку:
- Первоначальный взнос: 70.000 €
- Остаток: 7.600 € каждые 4 месяца
Рядом: парк Valea Trandafirilor, ТЦ Jumbo, супермаркеты, рестораны, кафе, аптеки, банки и т.д.
Удобный доступ к общественному транспорту.
РАСПОЛОЖЕНИЕ НА КАРТЕ











